511 Pleasant Harbor Road, Brinnon, Washington 98320

WA, Brinnon
$229,000
  • 1 Beds
  • 1 Bath
  • 601 Sqft
  • Residential Property Type
  • 2026 Year Built
  • Active Status
Property Description

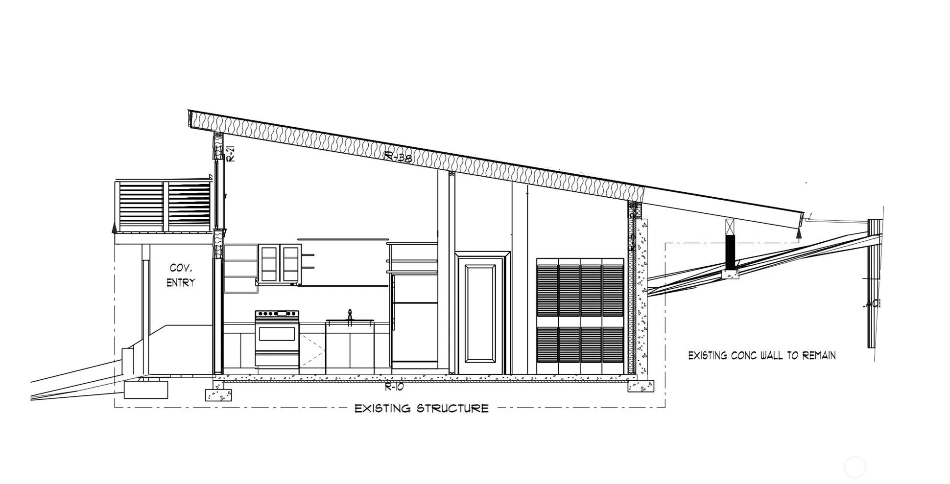
Build your modern cabin by summer! Rare opportunity to secure permitted waterfront property in one of Hood Canal’s most peaceful and serene spaces. Own 90ft of frontage on the sought after Pleasant Harbor – a great place to observe wildlife, launch your kayak or enjoy a picnic with friends. Whether you want to live off grid, have a weekend escape or vacation rental, this one will be perfect for you. Building permits and septic permits in hand! Plans use existing foundation so no need to worry about that. 1 bed 1 bath 601sf modern cabin with high ceilings and attached and detached decks. New composite 20’x20′ deck overlooks the water for unobstructed views is already in place. Price includes land and permits to build a new septic and structure. Price does not include construction costs. Inquire today.

Source: NWMLS
Basic Details
  • Property Type: Residential
  • Listing Type: For Sale
  • Listing ID: 2476715
  • Price: $229,000
  • View: Canal
  • Bedrooms: 1
  • Bathrooms: 1
  • Square Footage: 601 Sqft
  • Year Built: 2026
  • Lot Area: 0.19 Acre
  • Status: Active
  • Office Name: FIRST AND MAIN
  • Agent Name: Khaleel Grant
  • Full Bathrooms: 1
  • Property Sub Type: Single Family Residence
  • Roof: See Remarks
  • Waterfront: 1
Features
  • Heating System Heat Pump, See Remarks
  • Cooling System Ductless
  • Basement None
  • Parking Driveway
  • Exterior Features See Remarks
  • Sewer Septic Tank
  • Waterfront Features Medium Bank
Address Map
  • Country US
  • State WA
  • County Jefferson
  • City Brinnon
  • Zipcode 98320
  • Street: Pleasant Harbor
  • Street Number: 511
  • Street Suffix: Road
  • Longitude: E0° 0' 0''
  • Latitude: N0° 0' 0''
  • Directions: From US 101 turn towards water onto Pleasant Harbor Road, turn right and go to end of road an property will be near the end of the road on your left
  • Mls Area Major: 493 - Brinnon
Neighborhood
  • High School District: Brinnon
Additional Information
  • Water Source: Water Catchment System
  • On Market Date: 2026-02-01
  • Lot Features: Value In Land
  • Levels: One
  • Foundation Details: Poured Concrete
  • Construction Materials: See Remarks
Financial
  • Tax Annual Amount: 1643
Listing Information
  • List Agent Mls Id: 50428
  • List Office Mls Id: 10459
  • Listing Term: Cash,Conventional,FHA,Rehab Loan,See Remarks,State Bond,USDA Loan
  • Mls Status: Active
  • Modification Timestamp: 2026-04-03T06:04:57Z
  • Originating System Name: NWMLS
  • Special Listing Conditions: None
  • Status Change Timestamp: 2026-02-04T21:56:22Z
Rene  Orona
Rene Orona SKYLINE PROPERTIES, INC.
  • +1-425-891-8162
  • rene@brokerofrealestate.com
  • 50 116TH AVE SE STE 120 Bellevue, WA 98004, United States
  • +1-425-732-9211

Similar Properties

MLS On The Fly