2426 Sw Ridgeway Drive, Oak Harbor, Washington 98277

WA, Oak Harbor
$659,950
  • 4 Beds
  • 3 Bath
  • 2,318 Sqft
  • Residential Property Type
  • 2025 Year Built
  • Closed Status
Property Description

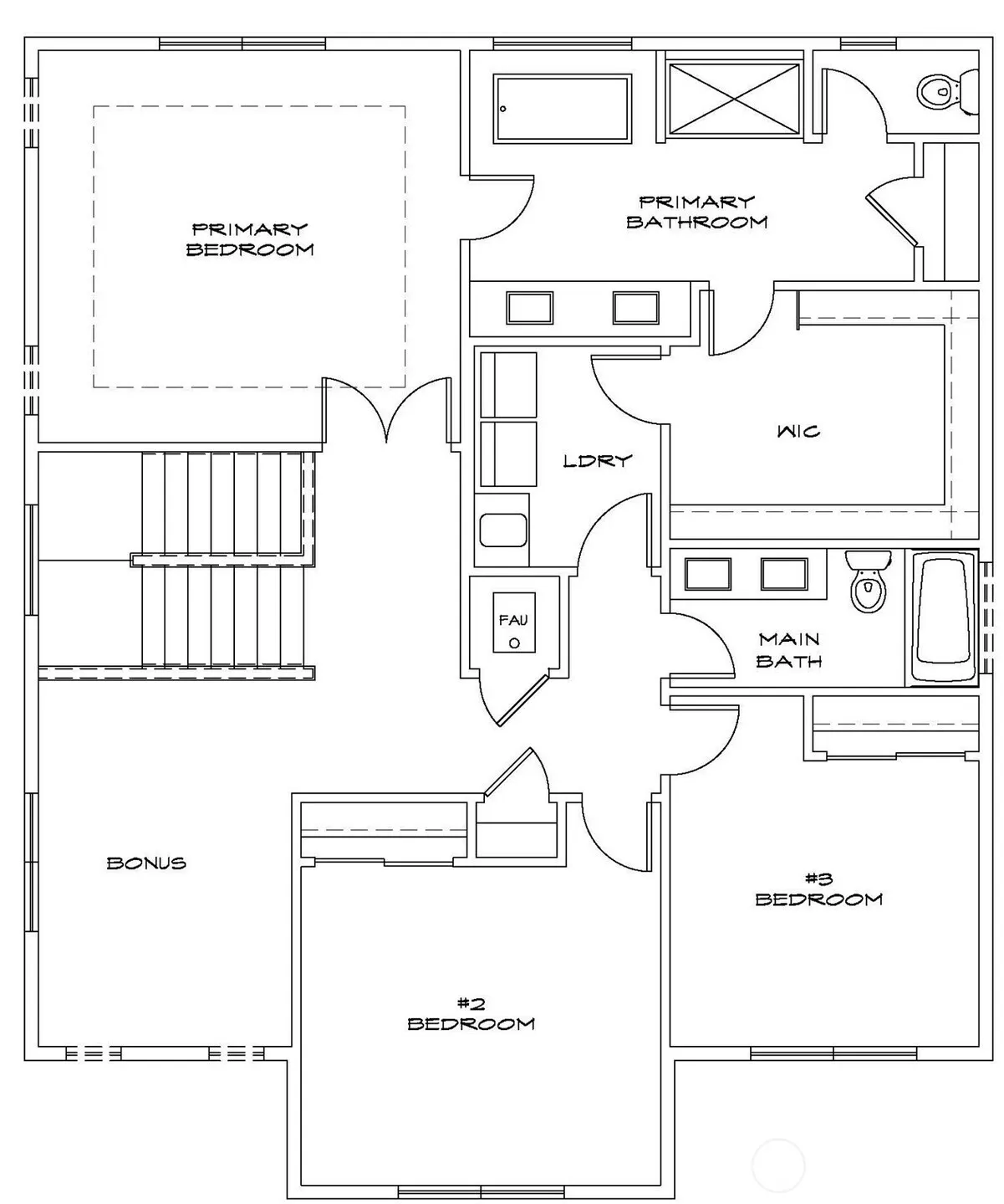
Welcome to Ridgeway Heights! The Prescott, Lot 21, offers a spacious 2,318 square-foot floorplan with 4 bedrooms and 2.75 baths. The main floor features an open kitchen, dining room, family room with fireplace, bedroom and 3/4 bath. Enjoy a covered patio, full landscaping and fully fenced backyard. The second floor features a bonus room, bedrooms, laundry and primary bedroom with en-suite bathroom, walk in closet and direct access to laundry. Quality finishes include white cabinetry, stainless steel appliances, quartz counters, heat pump (providing A/C), garage door opener with remote and more!! Site Registration policy – Buyers must register Broker on first Visit and Broker to attend future visits.

Source: NWMLS
Basic Details
  • Property Type: Residential
  • Listing Type: For Sale
  • Listing ID: 2411703
  • Price: $659,950
  • View: Territorial
  • Bedrooms: 4
  • Bathrooms: 3
  • Square Footage: 2,318 Sqft
  • Year Built: 2025
  • Lot Area: 0.09 Acre
  • Status: Closed
  • Office Name: Coldwell Banker 360 Team
  • Agent Name: Rick Chapman
  • Full Bathrooms: 2
  • Property Sub Type: Single Family Residence
  • Roof: Composition
  • New Construction Yn: 1
Features
  • Heating System Heat Pump, Forced Air, HRV/ERV System
  • Cooling System Forced Air, Heat Pump
  • Basement None
  • Fireplace Electric
  • Parking Attached Garage
  • Architectural Style Northwest Contemporary
  • Exterior Features Stone, Wood Products
  • Fireplaces Total: 1
  • Flooring Ceramic Tile, Carpet, Vinyl Plank, Vinyl
  • Interior Features Bath Off Primary, Double Pane/Storm Window, Fireplace, Walk-In Closet(s), Walk-In Pantry, Water Heater
  • Sewer Sewer Connected
Appliances
  • Dishwasher(s)
  • Disposal
  • Microwave(s)
  • Stove(s)/Range(s)
Address Map
  • Country US
  • State WA
  • County Island
  • City Oak Harbor
  • Zipcode 98277
  • Street: Ridgeway
  • Street Number: 2426
  • Street Suffix: Drive
  • Longitude: W123° 19' 31.3''
  • Latitude: N48° 16' 43.5''
  • Direction Faces: West
  • Directions: South on SR20 to SW 24th Street. Ridgeway Heights is down the street on your left.
  • Mls Area Major: 813 - North Whidbey Island
  • Street Dir Prefix: SW
Neighborhood
  • Elementary School: Buyer To Verify
  • High School: Buyer To Verify
  • High School District: Oak Harbor
  • Middle School: Buyer To Verify
Additional Information
  • Water Source: Public
  • On Market Date: 2025-07-23
  • Lot Features: Paved, Sidewalk
  • Levels: Two
  • Garage: 2
  • Foundation Details: Poured Concrete
  • Construction Materials: Wood, Stone
  • Attached Garage Yn: 1
Financial
  • Association Fee: 95
  • Association Fee Frequency: Monthly
  • Association Fee Includes: Common Area Maintenance
  • Association Yn: 1
Listing Information
  • Co List Agent Full Name: Kevin Johnson
  • Co List Agent Mls Id: 97686
  • Co List Office Mls Id: 4247
  • Co List Office Name: Coldwell Banker 360 Team
  • List Agent Mls Id: 17463
  • List Office Mls Id: 4247
  • Listing Term: Cash Out,Conventional,FHA,VA Loan
  • Mls Status: Sold
  • Modification Timestamp: 2025-12-15T12:04:13Z
  • Originating System Name: NWMLS
  • Special Listing Conditions: None
  • Status Change Timestamp: 2025-11-17T02:58:10Z
Rene  Orona
Rene Orona SKYLINE PROPERTIES, INC.
  • +1-425-891-8162
  • rene@brokerofrealestate.com
  • 50 116TH AVE SE STE 120 Bellevue, WA 98004, United States
  • +1-425-732-9211

Similar Properties

MLS On The Fly