409 S 30th Street, Tacoma, Washington 98402

WA, Tacoma
$799,950
  • 3,136 Sqft
  • Residential Income Property Type
  • 1890 Year Built
  • Active Status
Property Description

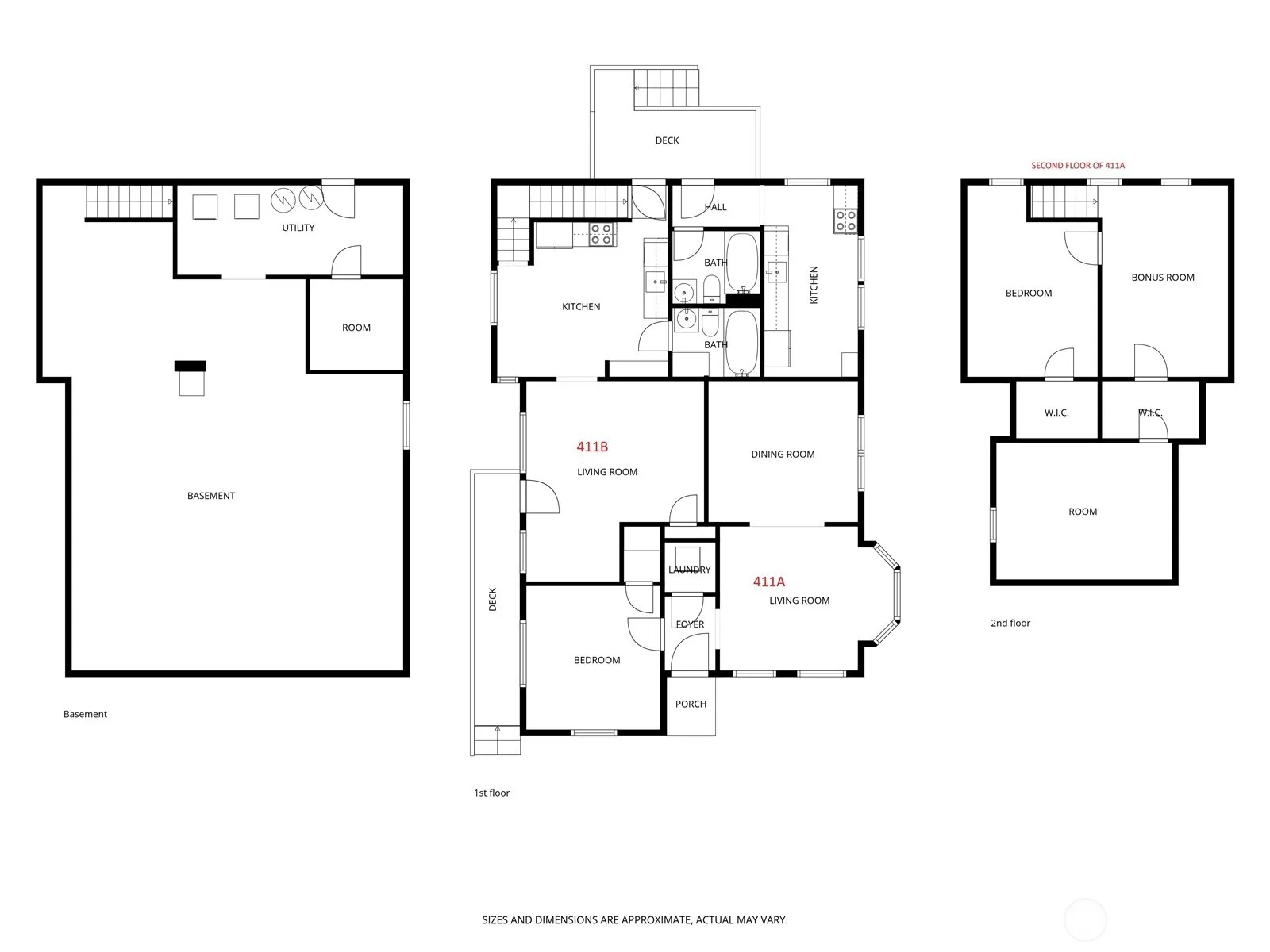
2 Houses on 1 Parcel and giving you 3 RENTAL UNITS. [Unit 411A and 411B]White Home in front has 2 UNITS w/ newer roof; pex plumbing, electrical, hardwood, and newer carpeting; and new double pane vinyl windows. UPDATED kitchens w/ stainless appliances. High ceilings and old-world charm create dramatic and easily rented homes. [Unit 409] DETACHED home in the rear w/ alley access offers the opportunity for a well-rounded investment; even multi-generational living. Garage w/ 2 separate stalls and alley access allows for plenty of parking. All units have been easily rented and have never had a problem filling with great residents. GREAT location for commuters and proximate to UW TACOMA, downtown, Tacoma Dome, HJwy 705, I-5, and all area services – north and south. A great place for your investment portfolio with an up-and-coming area.

Source: NWMLS
Basic Details
  • Property Type: Residential Income
  • Listing Type: For Sale
  • Listing ID: 2507125
  • Price: $799,950
  • Square Footage: 3,136 Sqft
  • Year Built: 1890
  • Lot Area: 0.15 Acre
  • Status: Active
  • Office Name: Morrison House Sotheby's Intl
  • Agent Name: Michael Morrison
  • Property Sub Type: Multi Family
  • Roof: Composition
Features
  • Heating System Forced Air, Wall Furnace
  • Cooling System None
  • Exterior Features Wood, Wood Products
  • Flooring Carpet, Vinyl Plank
  • Sewer Sewer Connected
Address Map
  • Country US
  • State WA
  • County Pierce
  • City Tacoma
  • Zipcode 98402
  • Street: 30th
  • Street Number: 409
  • Street Suffix: Street
  • Longitude: W123° 33' 43''
  • Latitude: N47° 14' 2.5''
  • Directions: Pacific Avenue to 30th to home; park in front of in Alley. DO NOT DISTURB residents
  • Mls Area Major: 30 - Central Tacoma
  • Street Dir Prefix: S
Neighborhood
  • Elementary School: Buyer To Verify
  • High School: Buyer To Verify
  • High School District: Tacoma
  • Middle School: Buyer To Verify
Additional Information
  • Water Source: Private
  • Stories Total: 2
  • Possible Use: Residential
  • On Market Date: 2026-04-13
  • Number Of Units Total: 3
  • Lot Features: Paved, Sidewalk, Alley
  • Garage: 2
  • Foundation Details: Poured Concrete
  • Construction Materials: Wood
Financial
  • Tax Annual Amount: 5610
Listing Information
  • List Agent Mls Id: 14578
  • List Office Mls Id: 362
  • Listing Term: Cash,Farm Home Loan
  • Mls Status: Active
  • Modification Timestamp: 2026-04-14T17:38:12Z
  • Originating System Name: NWMLS
  • Special Listing Conditions: None
  • Status Change Timestamp: 2026-04-14T03:44:15Z
Rene  Orona
Rene Orona SKYLINE PROPERTIES, INC.
  • +1-425-891-8162
  • rene@brokerofrealestate.com
  • 50 116TH AVE SE STE 120 Bellevue, WA 98004, United States
  • +1-425-732-9211

Similar Properties

MLS On The Fly