1717 183rd Street Ct Sw, Spanaway, Washington 98387

WA, Spanaway
$1,900,000
  • 5 Beds
  • 3 Bath
  • 3,070 Sqft
  • Residential Property Type
  • 1986 Year Built
  • Active Status
Property Description

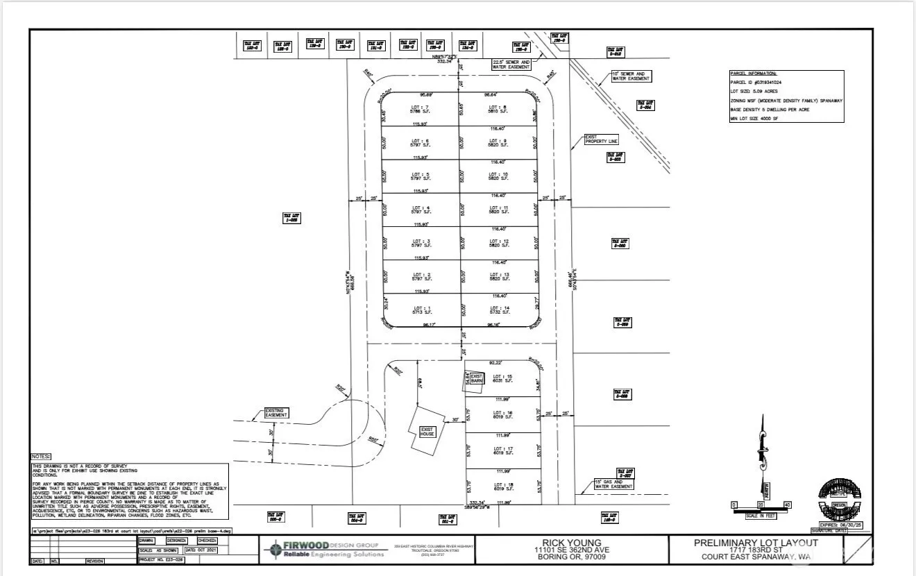
Rare opportunity for builders and developers to capitalize on just shy of 6 flat, usable acres in a private and serene setting. Zoned NMSF, this property comes with preliminary engineering in place & water rights secure for a thoughtfully designed 18-lot subdivision—offering a strong head start for your next project. Existing neighborhoods built all around the property. Maximize the potential by developing and building across all 18 lots while also adding value to the existing 3,070 sq ft home—ideal for renovation, resale, or holding as an income-producing asset during development. With its combination of scale, usability, and forward planning already underway, this is a standout investment opportunity in a sought-after location.

Source: NWMLS
Basic Details
  • Property Type: Residential
  • Listing Type: For Sale
  • Listing ID: 2511885
  • Price: $1,900,000
  • View: Territorial
  • Bedrooms: 5
  • Bathrooms: 3
  • Square Footage: 3,070 Sqft
  • Year Built: 1986
  • Lot Area: 5.09 Acre
  • Status: Active
  • Office Name: Keller Williams Rty Tacoma
  • Agent Name: Brandon Hjelseth
  • Full Bathrooms: 2
  • Property Sub Type: Single Family Residence
  • Roof: Tile
Features
  • Heating System Heat Pump, Forced Air
  • Cooling System Forced Air, Heat Pump
  • Basement Finished
  • Parking Attached Garage, RV Parking, Detached Carport
  • Exterior Features Wood, Wood Products
  • Sewer Septic Tank
Appliances
  • Stove(s)/Range(s)
  • Dishwasher
  • Refrigerator
  • Microwave
Address Map
  • Country US
  • State WA
  • County Pierce
  • City Spanaway
  • Zipcode 98387
  • Street: 183rd
  • Street Number: 1717
  • Street Suffix: Street Ct
  • Longitude: W123° 35' 37.8''
  • Latitude: N47° 5' 26''
  • Directions: GPS friendly.
  • Mls Area Major: 99 - Spanaway
  • Street Dir Suffix: E
  • Zoning: NMSF
Neighborhood
  • High School District: Bethel
Additional Information
  • Water Source: Individual Well
  • On Market Date: 2026-04-23
  • Lot Features: Dead End Street, Secluded, Dirt Road, Value In Land
  • Levels: Two
  • Foundation Details: Poured Concrete
  • Construction Materials: Wood
  • Attached Garage Yn: 1
Financial
  • Tax Annual Amount: 7800
Listing Information
  • List Agent Mls Id: 94474
  • List Office Mls Id: 9271
  • Listing Term: Cash,Conventional
  • Mls Status: Active
  • Modification Timestamp: 2026-04-24T19:12:12Z
  • Originating System Name: NWMLS
  • Special Listing Conditions: None
  • Status Change Timestamp: 2026-04-23T17:58:28Z
Rene  Orona
Rene Orona SKYLINE PROPERTIES, INC.
  • +1-425-891-8162
  • rene@brokerofrealestate.com
  • 50 116TH AVE SE STE 120 Bellevue, WA 98004, United States
  • +1-425-732-9211

Similar Properties

MLS On The Fly