1410 Sequalish Street, Steilacoom, Washington 98388

WA, Steilacoom
$1,599,950
  • 4 Beds
  • 3 Bath
  • 3,636 Sqft
  • Residential Property Type
  • 2025 Year Built
  • Canceled Status
Property Description

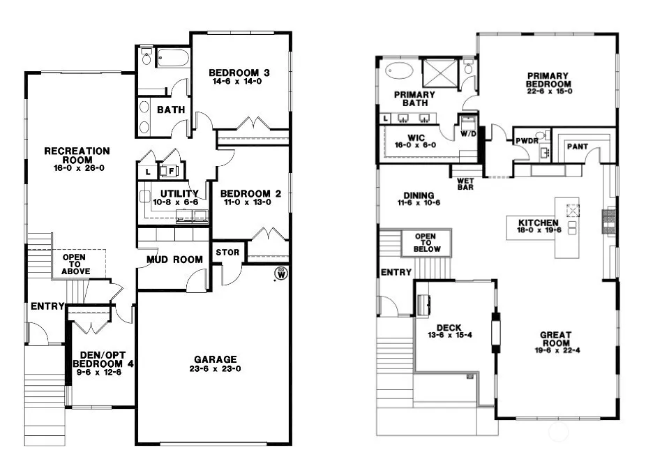
Modern new construction with Puget Sound views. Designer selected lighting, hardware & surfaces. Gourmet kitchen includes custom soft close cabinets, quartz countertops, gas stove w/pot filler, walk in pantry & T shaped island has large seating area. Luxury features include floor to ceiling black trim windows throughout, engineered hardwood floors, accent walls, iron railings. Great room w/western exposure views & 2 sided gas FP w/ tile surround, slider to outdoor living to enjoy the sunsets by the fire. Extra large primary suite includes luxurious 5-piece spa-inspired bath and a large walk-in closet with convenient washer/dryer hookups. Lower level includes 2 add’l BR, den/4th BR, laundry room + bonus. Close to Chambers Bay Golf & Parks.

Source: NWMLS
Basic Details
  • Property Type: Residential
  • Listing Type: For Sale
  • Listing ID: 2434899
  • Price: $1,599,950
  • View: Mountain(s),Partial,See Remarks,Sound
  • Bedrooms: 4
  • Bathrooms: 3
  • Square Footage: 3,636 Sqft
  • Year Built: 2025
  • Lot Area: 0.18 Acre
  • Status: Canceled
  • Office Name: Berkshire Hathaway HS SSP
  • Agent Name: Gary Hendrickson
  • Full Bathrooms: 2
  • Property Sub Type: Single Family Residence
  • Roof: Torch Down
  • New Construction Yn: 1
Features
  • Heating System Heat Pump, Forced Air
  • Cooling System Forced Air, Heat Pump
  • Fireplace Gas
  • Parking Attached Garage
  • Architectural Style Modern
  • Exterior Features Stone, Metal/Vinyl, Cement Planked, Cement/Concrete
  • Fireplaces Total: 1
  • Flooring Ceramic Tile, Carpet, Engineered Hardwood
  • Interior Features Bath Off Primary, Double Pane/Storm Window, Fireplace, Walk-In Closet(s), Walk-In Pantry, Dining Room, Water Heater
  • Sewer Sewer Connected
Appliances
  • Dishwasher(s)
  • Double Oven
  • Refrigerator(s)
  • Stove(s)/Range(s)
Address Map
  • Country US
  • State WA
  • County Pierce
  • City Steilacoom
  • Zipcode 98388
  • Street: Sequalish
  • Street Number: 1410
  • Street Suffix: Street
  • Longitude: W123° 24' 7.4''
  • Latitude: N47° 10' 6.6''
  • Directions: GPS - From Dupont - Steilacoom Rd - Turn R onto Sequalish St - Homesite on Right.
  • Mls Area Major: 43 - Steilacoom
Neighborhood
  • Elementary School: Cherrydale Elem
  • High School: Steilacoom High
  • High School District: Steilacoom Historica
  • Middle School: Pioneer Mid
Additional Information
  • Water Source: Public
  • On Market Date: 2025-09-19
  • Accessibility Features: CCRs
  • Lot Features: Paved
  • Levels: Multi/Split
  • Garage: 2
  • Foundation Details: Poured Concrete
  • Construction Materials: Concrete, Metal/Vinyl, Cement Plank, Stone
  • Community Features: CCRs
  • Attached Garage Yn: 1
Financial
  • Tax Annual Amount: 1807
Listing Information
  • Co List Agent Full Name: Hannah Ehrenheim
  • Co List Agent Mls Id: 108256
  • Co List Office Mls Id: 6080
  • Co List Office Name: Berkshire Hathaway HS SSP
  • List Agent Mls Id: 51793
  • List Office Mls Id: 6080
  • Listing Term: Cash Out,Conventional,FHA,VA Loan
  • Mls Status: Cancelled
  • Modification Timestamp: 2025-11-10T18:44:11Z
  • Originating System Name: NWMLS
  • Special Listing Conditions: None
  • Status Change Timestamp: 2025-11-10T18:41:20Z
Rene  Orona
Rene Orona SKYLINE PROPERTIES, INC.
  • +1-425-891-8162
  • rene@brokerofrealestate.com
  • 50 116TH AVE SE STE 120 Bellevue, WA 98004, United States
  • +1-425-732-9211

Similar Properties

MLS On The Fly