15712 205th Avenue Ct E #85, Bonney Lake, Wa 98391

WA, Bonney Lake
$654,950
  • 4 Beds
  • 3 Bath
  • 2,213 Sqft
  • Residential Property Type
  • 2024 Year Built
  • Closed Status
Property Description

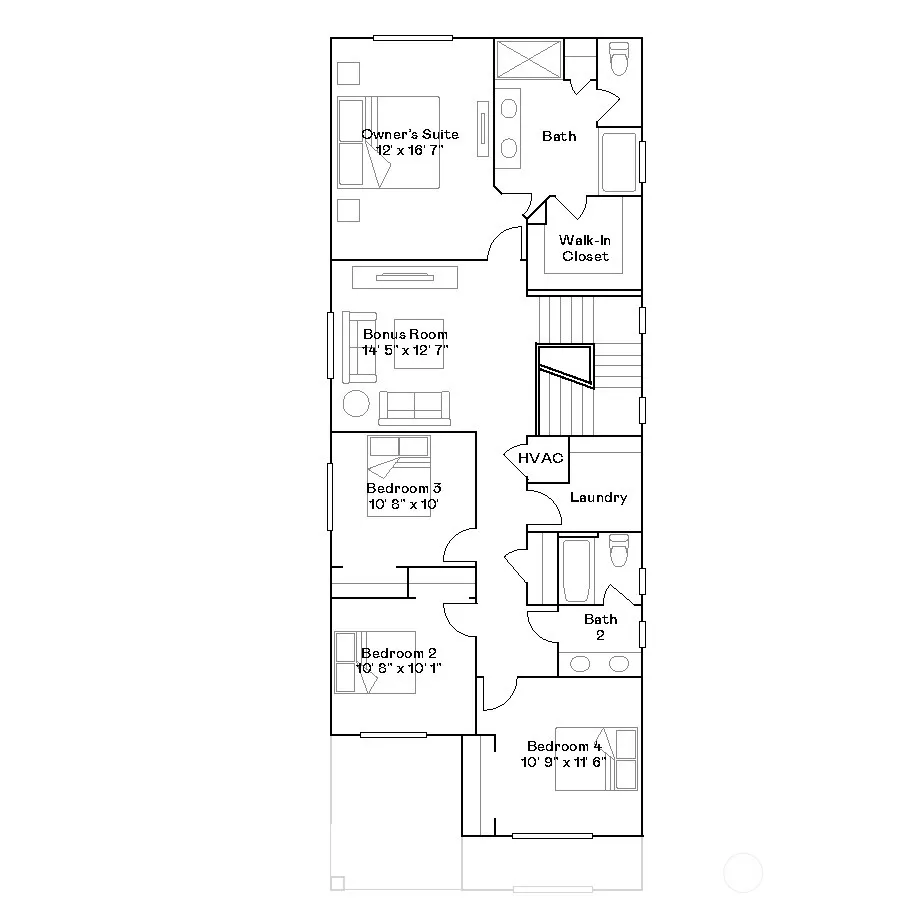
Lennar’s newest community to Tehaleh: Glacier Pointe! This Hazelwood floorplan on a corner homesite is host to a spacious, open floorplan shared between the kitchen, dining and Great Room on the main level, with access to your covered patio through sliding glass doors. A versatile bonus room and all four bedrooms are located upstairs, including the owner’s suite with an en-suite bathroom and walk-in closet. Move in July 2024! Enjoy all Tehelah has to offer from it’s boasting community center and numerous parks, to miles of maintained trails with beautiful scenery and mountain views through the community. Buyer’s broker must be registered during customers first interaction with Lennar Associate to be eligible for compensation.

Source: NWMLS
Basic Details
  • Property Type: Residential
  • Listing Type: For Sale
  • Listing ID: 2239420
  • Price: $654,950
  • View: Mountain(s)
  • Bedrooms: 4
  • Bathrooms: 3
  • Square Footage: 2,213 Sqft
  • Year Built: 2024
  • Lot Area: 0.13 Acre
  • Status: Closed
  • Office Name: Lennar Sales Corp.
  • Agent Name: Raquel Jasmer
  • Full Bathrooms: 2
  • Property Sub Type: Residential
  • Roof: Composition
  • New Construction Yn: 1
Features
  • Heating System 90%+ High Efficiency
  • Cooling System 90%+ High Efficiency
  • Basement None
  • Fireplace Electric
  • Parking Attached Garage
  • Architectural Style See Remarks
  • Exterior Features Cement Planked, Wood
  • Flooring Ceramic Tile, Carpet, Laminate
  • Interior Features Bath Off Primary, Ceramic Tile, Security System, Walk-In Closet(s), Walk-In Pantry, Wall to Wall Carpet, Dining Room, Loft, Laminate
  • Sewer Sewer Connected
Appliances
  • Dishwasher(s)
  • Disposal
  • Microwave(s)
  • Refrigerator(s)
  • Stove(s)/Range(s)
  • See Remarks
Address Map
  • Country US
  • State WA
  • County Pierce
  • City Bonney Lake
  • Zipcode 98391
  • Street: 205th
  • Street Number: 15712
  • Street Suffix: Avenue Ct
  • Longitude: W123° 50' 25.4''
  • Latitude: N47° 6' 46''
  • Direction Faces: West
  • Directions: At the traffic circle, take the 3rd exit onto Cascadia Boulevard East, Turn right onto Tehaleh Vis Blvd E, Turn left onto 160th St E, Look for the Lennar blue flags - Tehaleh will be on your left!
  • Mls Area Major: 109 - Lake Tapps/Bonney Lake
  • Street Dir Suffix: E
  • Unit Number: 85
Neighborhood
  • Elementary School: Buyer To Verify
  • High School: Buyer To Verify
  • High School District: Orting
  • Middle School: Buyer To Verify
Additional Information
  • Water Source: Public
  • On Market Date: 2024-05-16
  • Accessibility Features: CCRs, Playground, Park
  • Lot Features: Paved, Curbs, Sidewalk
  • Levels: Two
  • Garage: 2
  • Foundation Details: Poured Concrete
  • Community Features: Park, Playground, CCRs
  • Attached Garage Yn: 1
Financial
  • Association Fee: 80
  • Association Fee Frequency: Monthly
  • Association Yn: 1
  • Tax Annual Amount: 5500
Listing Information
  • Co List Agent Full Name: Jeffrey Napalan
  • Co List Agent Mls Id: 105238
  • Co List Office Mls Id: 3027
  • Co List Office Name: Lennar Sales Corp.
  • List Agent Mls Id: 96913
  • List Office Mls Id: 3027
  • Listing Term: Cash Out,Conventional,FHA,VA Loan
  • Mls Status: Sold
  • Modification Timestamp: 2024-10-11T19:17:09Z
  • Originating System Name: NWMLS
  • Special Listing Conditions: None
  • Status Change Timestamp: 2024-10-11T19:16:00Z
Rene  Orona
Rene Orona SKYLINE PROPERTIES, INC.
  • +1-425-891-8162
  • rene@brokerofrealestate.com
  • 50 116TH AVE SE STE 120 Bellevue, WA 98004, United States
  • +1-425-732-9211

Similar Properties

MLS On The Fly