1101 E 1101 E Twilight Lane , Ellensburg, Wa 98926

WA, Ellensburg
$534,950
  • 3 Beds
  • 2 Bath
  • 1,752 Sqft
  • Residential Property Type
  • 2024 Year Built
  • Closed Status
Property Description

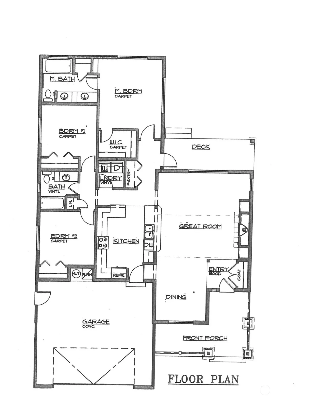
New home…Great location close to town. Private cul de sac & extra large lot. Quality built, beautiful interior, craftsman detailing, front porch entry, open floor plan includes easy maintenance luxury vinyl floors, gas fireplace & built-ins, solid surface kitchen counters, stainless appliances, 3 bedrooms, 2 baths. Primary suite includes walk-in closet, tile shower, tile floor & double sinks. Front yard sod & landscape. Backyard includes porch, patio, hydro seed, fenced with sprinkler system front & back. Estimated completion date:8-2-24

Source: NWMLS
Basic Details
  • Property Type: Residential
  • Listing Type: For Sale
  • Listing ID: 2237055
  • Price: $534,950
  • View: Territorial
  • Bedrooms: 3
  • Bathrooms: 2
  • Square Footage: 1,752 Sqft
  • Year Built: 2024
  • Lot Area: 0.30 Acre
  • Status: Closed
  • Office Name: Windermere R. E. Ellensburg
  • Agent Name: Cindi L. Stoltman
  • Full Bathrooms: 1
  • Property Sub Type: Residential
  • Roof: Composition
  • New Construction Yn: 1
Features
  • Heating System Heat Pump
  • Cooling System Heat Pump
  • Basement None
  • Fireplace Gas
  • Parking Attached Garage
  • Architectural Style Craftsman
  • Exterior Features Wood, Wood Products
  • Fireplaces Total: 1
  • Flooring Ceramic Tile, Carpet, Vinyl Plank
  • Interior Features Bath Off Primary, Ceramic Tile, Fireplace, Walk-In Closet(s), Wall to Wall Carpet, Water Heater
  • Sewer Sewer Connected
Appliances
  • Dishwasher(s)
  • Disposal
  • Microwave(s)
  • Stove(s)/Range(s)
Address Map
  • Country US
  • State WA
  • County Kittitas
  • City Ellensburg
  • Zipcode 98926
  • Street: TWILIGHT LANE
  • Street Number: 1101
  • Longitude: W121° 28' 6.3''
  • Latitude: N47° 1' 22.6''
  • Direction Faces: South
  • Directions: From Sanders Rd, turn north on Power, left on to Twilight Lane.
  • Mls Area Major: 949 - Lower Kittitas County
  • Street Dir Prefix: E
Neighborhood
  • Elementary School: Buyer To Verify
  • High School: Ellensburg High
  • High School District: Ellensburg
  • Middle School: Morgan Mid
Additional Information
  • Water Source: Public
  • On Market Date: 2024-05-13
  • Accessibility Features: CCRs
  • Lot Features: Paved, Curbs, Sidewalk, Cul-De-Sac
  • Levels: One
  • Garage: 2
  • Foundation Details: Poured Concrete
  • Community Features: CCRs
  • Attached Garage Yn: 1
Financial
  • Association Fee: 480
  • Association Fee Frequency: Annually
  • Association Yn: 1
  • Tax Annual Amount: 1141
Listing Information
  • List Agent Mls Id: 30251
  • List Office Mls Id: 9687
  • Listing Term: Cash Out,Conventional
  • Mls Status: Sold
  • Modification Timestamp: 2024-08-14T18:47:08Z
  • Originating System Name: NWMLS
  • Special Listing Conditions: None
  • Status Change Timestamp: 2024-08-14T18:45:02Z
Rene  Orona
Rene Orona SKYLINE PROPERTIES, INC.
  • +1-425-891-8162
  • rene@brokerofrealestate.com
  • 50 116TH AVE SE STE 120 Bellevue, WA 98004, United States
  • +1-425-732-9211

Similar Properties

MLS On The Fly