10207 32nd Street E, Edgewood, WA 98372

WA, Edgewood
$2,000,000
  • 1.90 Acre
  • Commercial Sale Property Type
  • Closed Status
Property Description

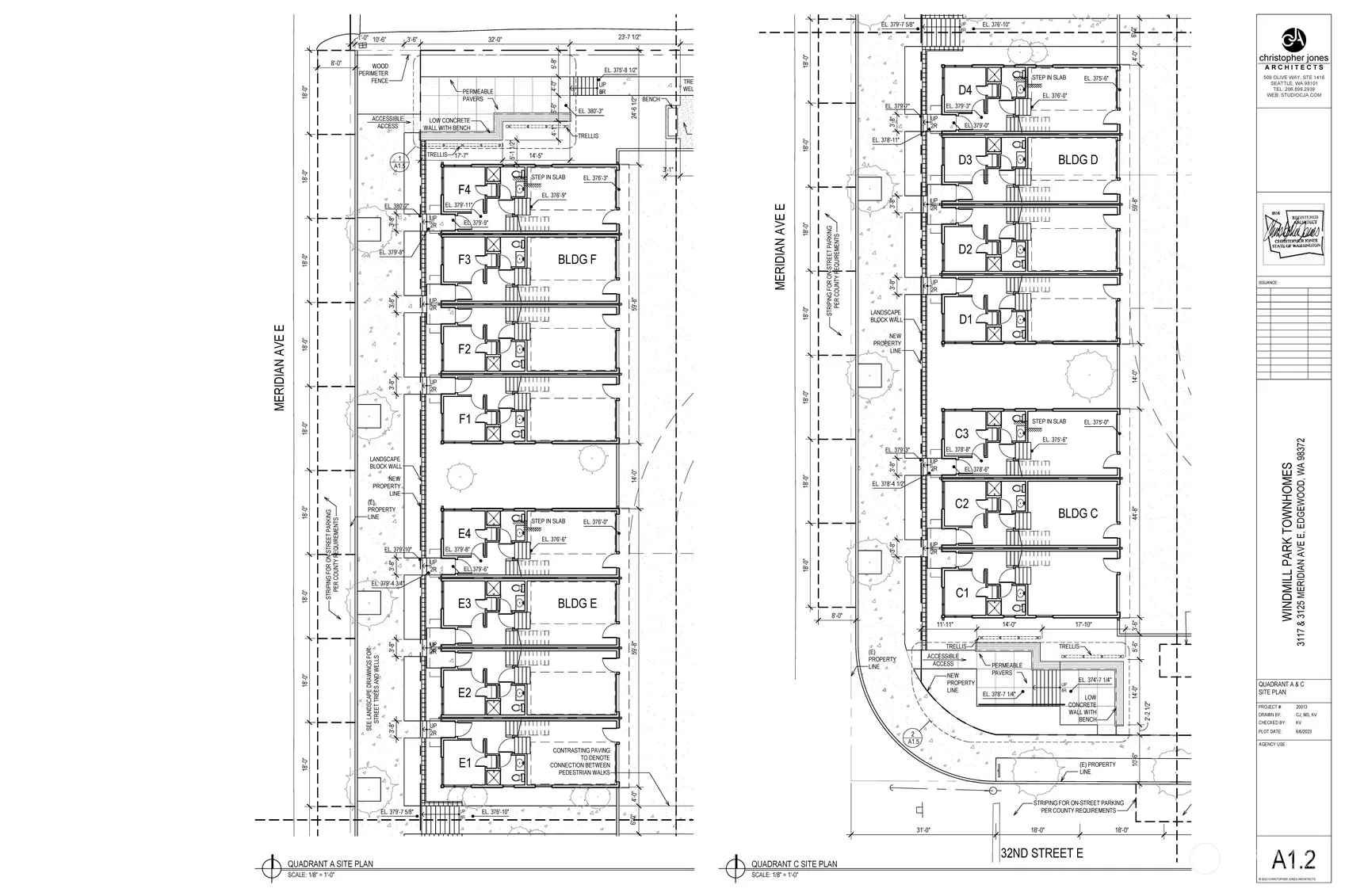
Builders and Investors, presenting Windmill Park Townhomes, a development site with a preliminary plat approved by the City of Edgewood. This is a 12 building 45 unit townhome project that includes two parcels for a total of 82,792 sq ft. Each townhome design includes 3 bedrooms, 2.5 baths and a garage. Located in the heart of Edgewood, this site has excellent exposure. Zoned Mixed Use Residential within the Meridian Corridor, close to streets, paths, Edgewood Community Park and easy access to the north onto I-5, Hwy 18 and to the south onto Hwy 167. This area has growth exponentially over the past few years.

Source: NWMLS
Basic Details
  • Property Type: Commercial Sale
  • Listing Type: For Sale
  • Listing ID: 2207220
  • Price: $2,000,000
  • Lot Area: 1.90 Acre
  • Status: Closed
  • Office Name: Agencyone Realty South
  • Agent Name: Fabiola Dortch
  • Property Sub Type: Commercial Industrial
Features
  • Sewer Available
Address Map
  • Country US
  • State WA
  • County Pierce
  • City Edgewood
  • Zipcode 98372
  • Street: 32nd
  • Street Number: 10207
  • Street Suffix: Street
  • Longitude: W123° 42' 24''
  • Latitude: N47° 13' 44.2''
  • Directions: From I-5 N - Follow I-5 S to WA-18 W in Federal Way. Take exit 142B from I-5 S, turn left on S/Enchanted Pkwy S, property will be on the left hand side.
  • Mls Area Major: 72 - Edgewood
  • Street Dir Suffix: E
Additional Information
  • Water Source: Public
  • Possible Use: Commercial,Multi-Family,Office,Residential,Retail
  • On Market Date: 2024-02-28
Financial
  • Tax Annual Amount: 12852
Listing Information
  • List Agent Mls Id: 27687
  • List Office Mls Id: 3034
  • Listing Term: Cash Out,Conventional
  • Mls Status: Sold
  • Modification Timestamp: 2024-05-17T14:13:10Z
  • Originating System Name: NWMLS
  • Special Listing Conditions: None
  • Status Change Timestamp: 2024-05-14T17:22:19Z
Rene  Orona
Rene Orona SKYLINE PROPERTIES, INC.
  • +1-425-891-8162
  • rene@brokerofrealestate.com
  • 50 116TH AVE SE STE 120 Bellevue, WA 98004, United States
  • +1-425-732-9211

Similar Properties

MLS On The Fly